Abattoir Katanga

plan
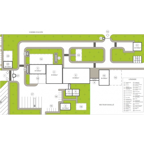
Réalisation d'une étude de faisabilité pour la construction d'un abattoir au Katanga: analyse générale, visite au Katanga, à Lubumbashi et au ranch de Biano pour rédiger l'étude de faisabilité avec une esquisse du projet. Egalement: visite de différents sites pouvant convenir pour la const ...En savoir plus



Etude de faisabilité pour la construction d'un abattoir au Katanga (R.D.C.)

Fiche projet

Maître d'Ouvrage : EGMF

Architecte :

Lieu d'exécution : Katanga (R.D.C.)

Montant des travaux :

Etat d'avancement : Terminé

Date de réception : 17/05/2018

Type de marché : Privé

  • Description
  • Spécifications

Réalisation d'une étude de faisabilité pour la construction d'un abattoir au Katanga: analyse générale, visite au Katanga, à Lubumbashi et au ranch de Biano pour rédiger l'étude de faisabilité avec une esquisse du projet. Egalement: visite de différents sites pouvant convenir pour la construction.

Etudes de la construction, du process et du rendement financier.